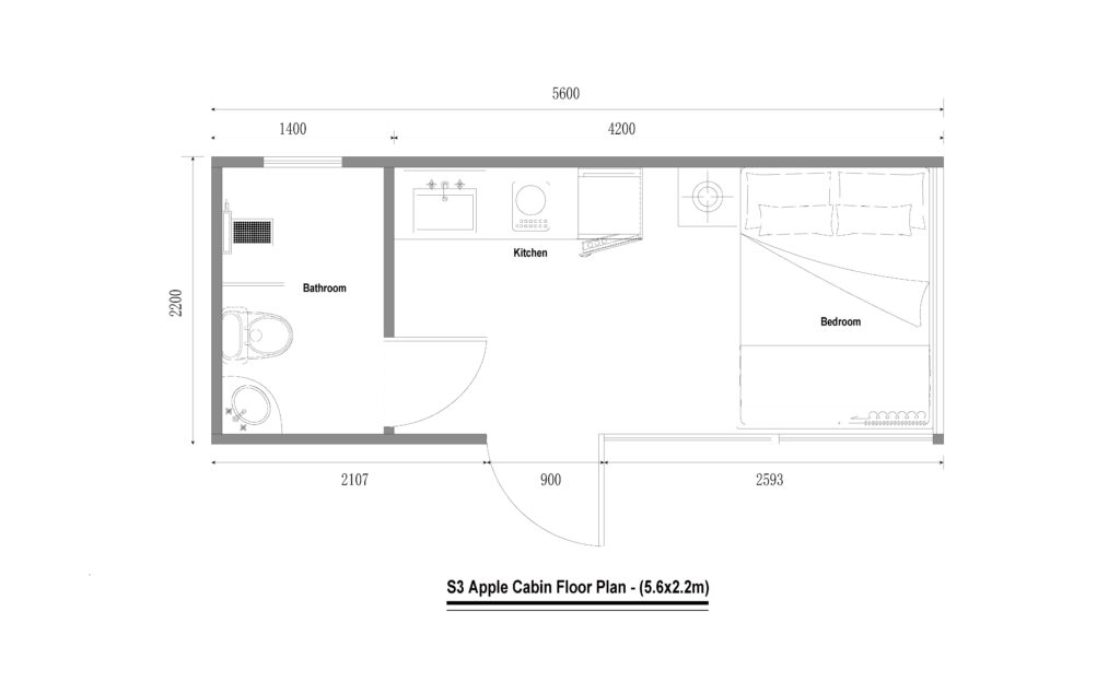
Area:13m² LxWxH:5.6mx2.2mx2.45m
Standard configuration:
Fine finishing, curtain mechanism, thermal insulation, waterproofing,wind protection,
smart lock, internal and external lighting,electricity wiring, sewerage, water treatment.
Optional configuration:
sofa, coffee table,TV cabinet, double bed, bedside table, refrigerator, TV, kitchen (lower
and upper cabinets, sink, artificial stone countertop), hob.
1.Details
Main Struction
Main frame(Galvanized steel frame structure), Shell (aluminum plate), Thermal insulation(polyurethane, extruded panel, Rock wool), Glass curtain wall (8+12A+8 Hollow LOW-E coated tempered glass)
Interior:
Aluminum exterior panel ceiling &wall, Stone plastic composite floor, Whole house lighting system, Whole house plumbing&electrical system, Entryway cabinet, Curtain track (without curtain)
Utilities
Communal cable, less insulated PVC piping, communal water and pressurized drainage piping, three-hole socket, switch panel/USB panel
Baths (optional)
Aluminum alloy glass door, Premium brand showerhead, Sink Washbasin,bathroom mirror, bathroom floor drain, Faucet,toilet, Bathroom heater, stainless
steel hanger.
Kitchen (optional)
Induction Cooker,Range Hood, Cabinet,Bar counter,Sink.
Appliance (optional)
Air conditioner, Electric water heater,refrigerator,washing machine with drying,4K Projector, Floor heating,Electric curtain
Furniture (optional)
Sofa, Bed, Coffee table,Lounge Chair
2.Delivery:
Delivery:
Delivery place: The factory is located in Weifang City, Shandong Province, China, and the nearest delivery port is Qingdao Port, China.
Delivery method: there are two delivery methods for Apple Cabin A2, the whole hosue and disassembled modular houses. For the whole house delivery, the
house will be shipped in 40 flat rack container due to the wide width of the house up to 3m, so the shipping costs are relatively high and suitable for only 1-2 houses. For the disassembled modular houses delivery, the house will be shipped in40 HQ,which saves shipping cost and is suitable for purchasing large quantity of houses.
Installation: Our services do not include installing the house. For the whole house delivery, installation is very simple, just need the crane to be placed on the base prepared in advance.
For the disassembled modular houses delivery, we will give you the necessary assembly drawings and video tutorials to help you install it locally, of course you
need to have some construction experience.
*we can also support DDP(Door to Door) , if you are an individual customer with no experience of importing from China, but you will need to contact our sales manager for detailes.
Delivery time:
Production:45 days
Delivery time:20-35 days
Therefore, we can deliver to any country in the world.
*Time may vary depending on holidays in China and the destination country and the complexity of the route to the delivery site.
3. Payment
Payment methods
T/T payment
Payment procedure
50% deposit before producing
50% balance befor delivery
4. Floor Plan
